Verkocht:Stationsweg 3, 4451 HJ Heinkenszand - Foto
Verkocht
+23

Stationsweg 3 4451 HJ Heinkenszand

  • Maatschappelijk vastgoed
  • Bouwjaar 1994
  • 606 m² perceeloppervlakte
  • 363 m² vloeroppervlakte

Beschrijving

Mooi aanbod met veel mogelijkheden, gelegen in de kern van Heinkenszand! Het pand dat wij aanbieden betreft een voormalige sportschool/fitnessruimte. Heeft u ambities om voor uzelf te beginnen en op zoek naar mogelijkheden? Maak een afspraak om dit pand te komen bekijken.

ALGEMEEN
Het pand heeft een bedrijfsmatige bestemming en leent zich uitstekend om gebruikt te worden als bv. een sportschool, een praktijkruimte, kantoor-winkelruimte of een gezondheidscentrum met (fysio). Het pand staat op een ruim perceel van ca. 606 m2. Het pand is ruim van opzet met een oppervlakte van ca. 363 m2.

LOCATIE
Het pand dat wij aanbieden staat op een ruim perceel van ca. 606 m2. Het pand is gelegen in het centrum van Heinkenszand met haar vele diversiteit en aanbod qua (winkel)voorzieningen. Uitvalswegen zoals A58 en N665 zijn dichtbij gelegen. Via de A58 zijn grotere steden als Goes en Middelburg snel en makkelijk bereikbaar.

PARKEREN
Aan de voorzijde en zijkant van het pand is op eigen terrein parkeerruimte aanwezig.

BESTEMMING
Bedrijfsmatige bestemming / sportbestemming

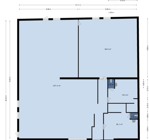
INDELING

Fitness en kleedruimtes
- Hal
- Herenkleedkamer met wastafel, toilet en 3 douches.
- Dameskleedkamer met wastafel, toilet en 2 douches.
- Groepsruimte met toegang tot de achter gelegen buitenruimte.
- Fitnesszaal.

TUIN
Buitenruimte aan de voor- en zijkant van het pand.

Heeft u interesse? Bel/mail ons voor meer informatie of voor het plannen van een bezichtigingsafspraak!

Kaart

Kenmerken

Overdracht

Referentienummer
06195
Vraagprijs
€ 280.000,- k.k.
Inrichting
Niet gestoffeerd
Inrichting
Niet gemeubileerd
Status
Verkocht
Aanvaarding
In overleg
Aangeboden sinds
Donderdag 1 februari 2024
Laatste wijziging
Zaterdag 18 oktober 2025

Bouw

Type object
Maatschappelijk vastgoed, Sport instelling
Soort bouw
Bestaande bouw
Bouwperiode
1994

Oppervlaktes en inhoud

Perceeloppervlakte
606 m²
VVO
363 m²

Locatie

Ligging
In centrum
Lokale voorzieningen
Bank binnen 500 meter
Geldautomaat op 500 meter tot 1000 meter
Restaurant binnen 500 meter
Winkel binnen 500 meter
Supermarkt binnen 500 meter
Bereikbaarheid
Bushalte binnen 500 meter
Treinstation op 5000 meter of meer
Afrit van de snelweg op 500 meter tot 1000 meter

Uitrusting

Aantal parkeerplaatsen
13

Kadastrale gegevens

Kadastrale aanduiding
Borsele AH 3857
Perceeloppervlakte
843 m²

Media

Video

Virtuele tour

Plattegronden

Brochure(s) en overige bijlagen

Brochure - Stationsweg 3 - Heinkenszand.pdf Download

Loop jouw droomwoning niet mis

Schrijf je nu is en wordt snel en gemakkelijk op de hoogte gehouden van ons aanbod! Inschrijven